Biuletyn Informacji Publicznej
Urząd Gminy Łubianka

Wyszukiwarka

Treść strony

Zarządzenie Nr 41/2025 Wójta Gminy Łubianka z dnia 6 czerwca 2025 r. w sprawie sporządzenia i podania do publicznej wiadomości wykazu nieruchomości komunalnej położonej w Przecznie przeznaczonej do dzierżawy.

drukuj (Zarządzenie Nr 41/2025 Wójta Gminy Łubianka z dnia 6 czerwca 2025 r. w sprawie sporządzenia i podania do publicznej wiadomości wykazu nieruchomości komunalnej położonej w Przecznie przeznaczonej do dzierżawy.)

Metryka

  • Opublikował Katarzyna Kucharska
  • Data publikacji 2025-06-06 14:11
  • Ostatnio zmodyfikował Katarzyna Kucharska
  • Ostatnia modyfikacja 2025-06-06 14:13

Metryka

  • Opublikował Katarzyna Kucharska
  • Data publikacji 2025-06-06 14:07

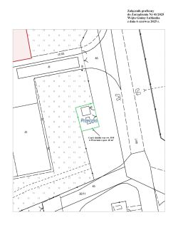
Załącznik graficzny do Zarządzenia nr 41/2025

  • Załącznik graficzny do Zarządzenia

    Metryka

    • Autor lub odpowiedzialny za treść Dagna Całbecka, Wójt Gminy Łubianka
    • Data wytworzenia 2025-06-06
    • Opublikował Katarzyna Kucharska
    • Data publikacji 2025-06-06 14:15
    • Ostatnio zmodyfikował Maria Wójcik
    • Ostatnia modyfikacja 2025-06-27 14:05

Metryka strony

Ilość odwiedzin obecnej strony: 65497
Ostatnia aktualizacja treści obecnej strony: 2025-12-29 14:47:12